Geräumiges Zweifamilienhaus auf großem Grundstück zum Kauf in Nieder-Ingelheim
Reserviert

























Beschreibung
Bei diesem Angebot handelt es sich um ein freistehendes Zweifamilienhaus mit Garten, Terrasse und Balkon zum Kauf in Nieder-Ingelheim.Dieses Haus eignet sich auch hervorragend als Einfamilienhaus- mit viel Platz für die große Familie.
Beide Wohnungen und den Keller erreichen Sie durch das Treppenhaus des Hauses.
In der Wohnung im Erdgeschoss werden Sie von einem Flurbereich empfangen, durch den die Zimmer direkt zu erreichen sind.
Linksseitig der Eingangstüre liegt das erste Schlafzimmer, welches sich auch ideal als Arbeitszimmer nutzen lässt.
Daneben befindet sich das zweite Schlafzimmer mit einem praktischen, quadratischen Schnitt und viel Platz für z.B. einen Schrank und ein großes Bett.
Vom Flur aus geradeaus befindet sich die große Küche mit Essbereich. Durch die Küche gelangt man ins geräumige Wohnzimmer, mit tollem Blick in den Garten und Zugang zur großen Terrasse.
Das Badezimmer ist mit WC, Waschbecken und einer begehbaren Dusche ausgestattet.
Die Wohnung im EG befindet sich insgesamt in einem modernisierungsbedürftigem Zustand.
Die Wohnung im OG erreichen Sie ebenfalls über das Treppenhaus- sie ist nahezu gleich geschnitten, befindet sich jedoch in einem renovierten Zustand und verfügt über eine Gas-Etagenheizung (2023). Diese Wohnung ist derzeit vermietet (585 EUR Kaltmiete/Monat)
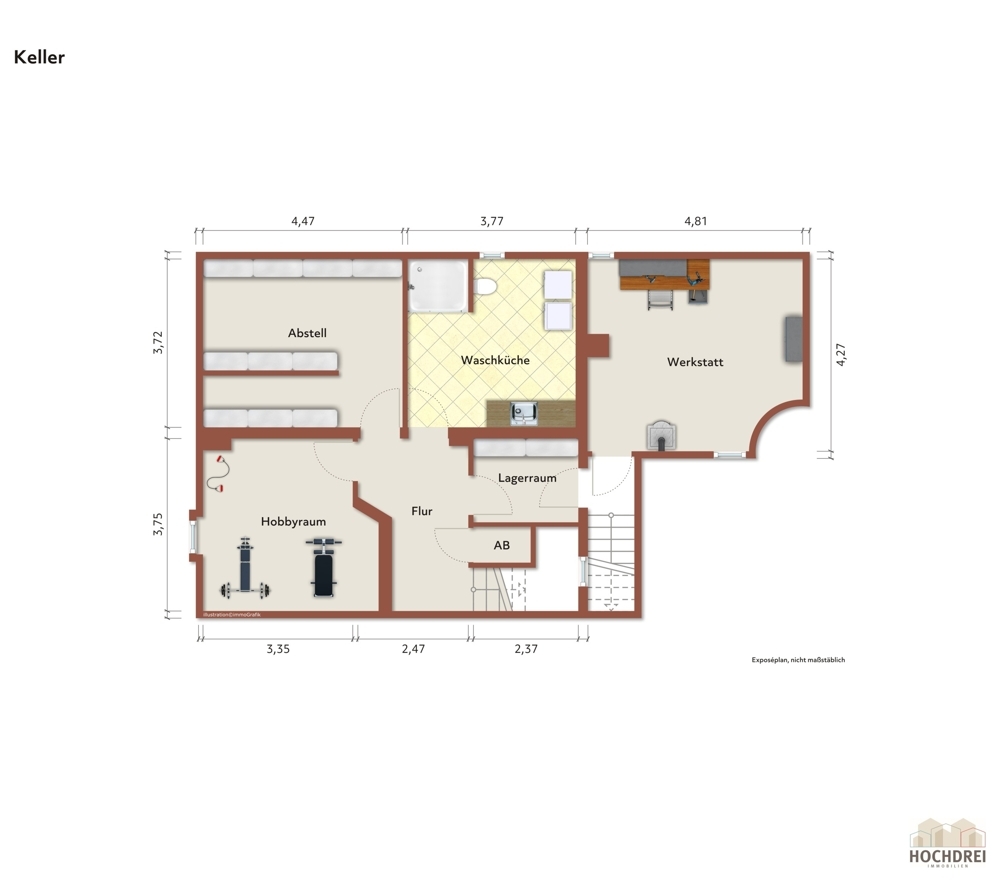
Das Haus ist vollständig unterkellert.
Im Keller befindet sich eine Waschküche, ein Hobbyraum, eine Werkstatt und ein weiterer Raum zum Lagern und Abstellen.
Das Haus verfügt über eine Garage, sowie eine Hofeinfahrt, wo weitere Parkmöglichkeiten vorhanden sind.
Bitte beachten: Die Fotos stellen nur die Wohnung im Erdgeschoss dar.
Sollten Sie Interesse an diesem Zweifamilienhaus zum Kauf in Nieder-Ingelheim haben, so nehmen Sie Kontakt zu uns auf.
Gerne übermitteln wir Ihnen das ausführliche Exposé inkl. aller Unterlagen und unseren hochauflösenden 3D Rundgang
Lage
Ingelheim am Rhein ist eine große kreisangehörige Stadt im Landkreis Mainz-Bingen in Rheinland-Pfalz.Die schöne Kreisstadt mit über 26.400 Einwohnern ist über zwei direkte Autobahnanschlüsse an die A60 mit den wichtigsten europäischen Verkehrsadern verbunden.
Der Rhein-Main-Flughafen Frankfurt sowie der Flughafen Frankfurt-Hahn sind per Auto schnell zu erreichen.
Die Landeshauptstadt Mainz (Rheinland-Pfalz) liegt nur 20 Kilometer von Ingelheim am Rhein entfernt.
Weitere Standortvorteile sind die direkte Lage am Rhein und die guten Zugverbindungen.
In Ingelheim gibt es einen Bahnhof, der von Regionalzügen der Deutschen Bahn und der Transregio-Mittelrheinbahn mit direkten Verbindungen nach Mainz und Frankfurt sowie Verbindungen nach Bingen, Koblenz, Bad Kreuznach und Saarbrücken bedient wird.
In unmittelbarer Bahnhofsnähe befindet sich auch der Zentrale Omnibusbahnhof, von dem drei Stadtbuslinien (611, 612, 613) zu Zielen in verschiedenen Stadtteilen fahren. Vier regionale Linien (620, 640, 643, 75) mit den Zielen Mainz, Ober-Hilbersheim, Gau-Algesheim und Heidesheim erschließen die Umgebung.
Ausstattung
Zweifamilienhaus mit folgenden Ausstattungsmerkmalen zum Kauf in Nieder-Ingelheim:- Baujahr 1957 (Anbau 1962)
- Wohnfläche EG: 82,30m²
- Wohnfläche OG 81m²
- Grundstück: 730m²
- voll unterkellert
- Waschküche
- Werkstatt
- Hof
- Garage
- Fenster mit Holzrahmen (1979)
- Bodenbelag: Teppichboden und Fliesen
- Heizung: Im EG Nachtspeicherheizung, im OG Gas-Etagenheizung (2023)
Sonstige Angaben
Als Ihre Experten für den Verkauf von Wohnimmobilien sind wir für vorgemerkte und bonitätsgeprüfte Kunden ständig auf der Suche nach Eigentumswohnungen und Häuser im Raum Ingelheim, Mainz, Bingen, Wiesbaden und Umgebung.Haben Sie schon einmal über einen Verkauf nachgedacht?
Wir bieten Ihnen gerne eine kostenlose und unverbindliche Wertermittlung Ihrer Immobilie an!
Besuchen Sie jetzt unsere Homepage und lassen Sie Ihre Immobilie direkt und unverbindlich bewerten:
https://www.hochdrei-immobilien.de/leistungen/immobilienbewertung.htm