Gemütliche Hofreite mit Nebengebäude zum Kauf in Nieder-Ingelheim
Top Angebot
































Beschreibung
Bei diesem Angebot handelt es sich um eine typische Ingelheimer Hofreite auf einem 433 m² großen Grundstück in schöner Lage von Nieder-Ingelheim.Das Haus wurde ursprünglich um etwa 1900 erbaut und verfügt über eine Wohnfläche von 225,91 m², welche sich auf das Haupthaus und ein Nebengebäude mit separatem Zugang über den Hof verteilt.
Das Haupthaus erreichen Sie ganz bequem über die Eingangstüre in der Einfahrt.
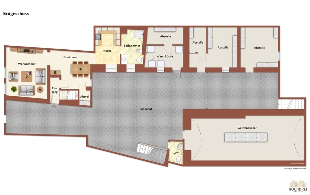
Das Erdgeschoss unterteilt sich in einen Flur mit Treppenaufgang zum Obergeschoss, ein Wohnzimmer mit angrenzendem Essbereich sowie der gemütlichen Küche samt anliegendem Badezimmer mit Dusche, Waschbecken und WC.
Im Obergeschoss befinden sich 4 Zimmer, davon 2 Durchgangszimmer und das Bügelzimmer, welches zusätzlich noch mit einem WC und einem Waschbecken ausgestattet ist.
Auf Grund des Baujahres beträgt die Deckenhöhe im OG teilweise nur knapp 1,90m!
Durch eine Treppe im Flur ist auch der Dachboden im Haus zu begehen der großzügigen Stauraum bietet.
Hier verteilen sich auf zwei Etagen nochmal 3 Schlafzimmer, ein Wohnzimmer, eine Küche und ein Badezimmer.
Diese Einheit ist nun schon etwas länger nicht mehr bewohnt und befindet sich dementsprechend in einem sanierungsbedürftigen Zustand.
Abgerundet wird dieses spannende Wohnangebot von dem geräumigen Hofbereich, dem Teilkeller und zahlreichen Nebenräumen, die allerlei Platz zur Entfaltung bieten.
Egal ob Hobby-, Partyraum und Werkstatt, hier ist genug Raum für kreative Köpfe oder Handwerker gegeben.
Zum Feldrand des Grundstücks ist außerdem noch ein kleiner Garten vorhanden.
Sollten Sie Interesse an diesem Objekt zum Kauf in Ingelheim haben, so nehmen Sie Kontakt zu uns auf.
Gerne übermitteln wir Ihnen das ausführliche Exposé inkl. aller Unterlagen und unseren hochauflösenden 3D Rundgang.
Wir freuen und auf Ihre Anfrage.
Lage
Ingelheim am Rhein ist eine große kreisangehörige Stadt im Landkreis Mainz-Bingen in Rheinland-Pfalz.Die schöne Kreisstadt mit über 26.400 Einwohnern ist über zwei direkte Autobahnanschlüsse an die A60 mit den wichtigsten europäischen Verkehrsadern verbunden.
Der Rhein-Main-Flughafen Frankfurt sowie der Flughafen Frankfurt-Hahn sind per Auto schnell zu erreichen.
Die Landeshauptstadt Mainz (Rheinland-Pfalz) liegt nur 20 Kilometer von Ingelheim am Rhein entfernt.
Weitere Standortvorteile sind die direkte Lage am Rhein und die guten Zugverbindungen.
In Ingelheim gibt es einen Bahnhof, der von Regionalzügen der Deutschen Bahn und der Transregio-Mittelrheinbahn mit direkten Verbindungen nach Mainz und Frankfurt sowie Verbindungen nach Bingen, Koblenz, Bad Kreuznach und Saarbrücken bedient wird.
In unmittelbarer Bahnhofsnähe befindet sich auch der Zentrale Omnibusbahnhof, von dem drei Stadtbuslinien (611, 612, 613) zu Zielen in verschiedenen Stadtteilen fahren. Vier regionale Linien (620, 640, 643, 75) mit den Zielen Mainz, Ober-Hilbersheim, Gau-Algesheim und Heidesheim erschließen die Umgebung.
Ausstattung
Hofreite mit großem Grundstück und folgenden Ausstattungsmerkmalen:- Baujahr um 1900
- Gas-Zentralheizungen aus 1998 und 2002
- Großer Hofbereich
- Zwei Wohneinheiten
- Doppelverglaste Fenster mit Holz- und Kunststoffrahmen aus den Jahren 1990 und 1979
- Bodenbelag: Fliesen, Laminat, Linoleum und Teppichboden
- Speicher
- Diverse Räumlichkeiten im Hof
- Gewölbekeller
- Garten
- Parkmöglichkeiten im Hof
- Separates Außen-WC
Sonstige Angaben
Als Ihr Experte für den Verkauf von Wohnimmobilien sind wir für vorgemerkte und bonitätsgeprüfte Kunden ständig auf der Suche nach Eigentumswohnungen und Häusern im Raum Ingelheim, Mainz, Bingen, Wiesbaden und Umgebung.Haben Sie schon einmal über einen Verkauf nachgedacht?
Wir bieten Ihnen gerne eine kostenlose und unverbindliche Wertermittlung Ihrer Immobilie an!
Besuchen Sie jetzt unsere Homepage und lassen Sie Ihre Immobilie direkt und unverbindlich bewerten:
https://www.hochdrei-immobilien.de/leistungen/immobilienbewertung.html
Oder melden Sie sich telefonisch unter 06132 - 714 93 83.
Alternativ besuchen Sie uns auch persönlich in unserem Ladengeschäft in der Bahnhofstraße 22 in Ingelheim.
Wir freuen uns auf Sie!